SKU#: FL25
$ 350.00
Ask Advice
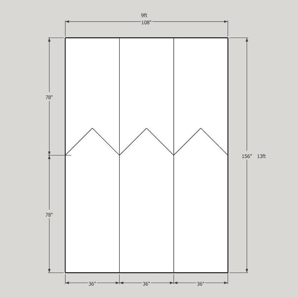
Description american walnut solid raw. rents PER panel
Condition damaged
Color raw
Dimensions plank size 5"x 18". each panel 36" wide x 78" long. total floor 15ft x 13ft
Quantity DAMAGED IN REPAIR PLEASE CALL (10 panels)
Copyright © 2019 Tip Top Props Llc
Powered By Shopify




